Nhà Cấp 4 Mái Nhật 3 Phòng Ngủ đang trở thành lựa chọn hàng đầu của nhiều gia đình Việt Nam nhờ sự kết hợp hài hòa giữa nét kiến trúc hiện đại, công năng sử dụng tối ưu và chi phí hợp lý. Với đặc trưng là kiểu mái có độ dốc vừa phải, các lớp mái xếp chồng hoặc trải rộng, phong cách nhà mái Nhật mang đến vẻ đẹp thanh thoát, tinh tế và khả năng thích nghi tốt với điều kiện khí hậu nhiệt đới của Việt Nam. Không chỉ đảm bảo tính thẩm mỹ, những mẫu thiết kế này còn chú trọng đến không gian sống tiện nghi, thoải mái cho gia đình có 3-5 thành viên.
Trong bài viết này, CÔNG TY TNHH MÔI TRƯỜNG HSE sẽ cùng bạn khám phá sâu hơn về các loại hình nhà cấp 4 mái Nhật phổ biến, những điểm khác biệt so với mái Thái, và tuyển chọn 30+ mẫu thiết kế nhà cấp 4 mái Nhật 3 phòng ngủ ấn tượng nhất hiện nay. Từ những ngôi nhà đơn giản ở nông thôn đến những biệt thự mini sang trọng, mỗi mẫu đều được phân tích để giúp bạn hình dung rõ ràng về ngôi nhà mơ ước của mình, đồng thời cung cấp những lời khuyên hữu ích để tối ưu quá trình xây dựng.
Tổng Quan về Nhà Cấp 4 Mái Nhật 3 Phòng Ngủ
Nhà cấp 4 mái Nhật là một xu hướng kiến trúc được lấy cảm hứng từ xứ sở hoa anh đào, nhưng đã được điều chỉnh để phù hợp với văn hóa và điều kiện tự nhiên tại Việt Nam. Kiểu nhà này không chỉ mang lại vẻ đẹp độc đáo mà còn tối ưu hóa công năng sử dụng, đặc biệt phù hợp với những gia đình cần 3 phòng ngủ tiện nghi.
Các Loại Hình Nhà Cấp 4 Mái Nhật Phổ Biến
Hiện nay, nhà mái Nhật cấp 4 thường được thiết kế theo hai dạng chính: mái ngói dốc và mái ngói phẳng, mỗi loại mang một vẻ đẹp và ưu điểm riêng:
- Mái ngói dốc: Mái nhà kiểu Nhật này được thiết kế với nhiều hướng khác nhau, các mái lớn xếp chồng lên nhau tạo cảm giác gợn sóng mềm mại, uyển chuyển. Độ dốc vừa phải giúp thoát nước mưa hiệu quả mà vẫn giữ được sự thanh thoát.
- Mái ngói phẳng: Kiểu mái này có đặc điểm là phần mái rộng và căng ra cả bốn góc, giúp hạn chế mưa nắng hắt vào nhà, đồng thời tạo cảm giác hiện đại và phóng khoáng. Các gia đình trẻ thường yêu thích và lựa chọn loại mái này bởi sự đơn giản nhưng tinh tế.
Mẫu nhà cấp 4 mái Nhật 3 phòng ngủ với thiết kế mái dốc xếp chồng mềm mại
So Sánh Nhà Cấp 4 Mái Nhật và Mái Thái 3 Phòng Ngủ
Cả hai loại hình nhà cấp 4 mái Thái và mái Nhật đều sử dụng vật liệu ngói để lợp mái, giúp ngôi nhà mát mẻ và tăng tính thẩm mỹ. Tuy vậy, hai kiểu nhà này vẫn có một số điểm khác biệt cơ bản về kiến trúc và độ dốc:
- Nhà cấp 4 mái Thái 3 phòng ngủ thường có phần mái dốc hơn, đỉnh chóp cao và nhọn, tạo cảm giác bề thế và thoát nước cực nhanh.
- Nhà cấp 4 mái Nhật 3 phòng ngủ có độ dốc thấp hơn, thường dưới 40%, đảm bảo nước mưa có thể thoát ra ngoài và giúp cân bằng khuôn mái một cách hợp lý. Thiết kế này mang đến vẻ đẹp nhẹ nhàng, hiện đại và ít “kén” diện tích đất hơn.
Mỗi phong cách mái đều có ưu điểm riêng, tùy thuộc vào sở thích cá nhân, phong cách kiến trúc mong muốn và điều kiện địa lý mà gia chủ có thể lựa chọn. Việc cân nhắc kỹ lưỡng sẽ giúp bạn có một ngôi nhà đẹp và ưng ý.
Tuyển Chọn 30+ Mẫu Nhà Cấp 4 Mái Nhật 3 Phòng Ngủ Đẹp và Hiện Đại Nhất
Để giúp độc giả dễ dàng hình dung và lựa chọn, chúng tôi đã tổng hợp các mẫu nhà cấp 4 mái Nhật 3 phòng ngủ theo nhiều phong cách và diện tích khác nhau, đảm bảo đáp ứng đa dạng nhu cầu của các gia đình. Mỗi mẫu đều là nguồn cảm hứng tuyệt vời cho ngôi nhà mơ ước của bạn.
Thiết Kế Trần Nhà Cấp 4 Mái Nhật 3 Phòng Ngủ Ấn Tượng
Trần nhà cấp 4 không chỉ cần đẹp mắt mà còn phải phù hợp với phong cách tổng thể, đồng thời đảm bảo vững chắc kết cấu và tăng khả năng cách nhiệt hiệu quả. Các giải pháp trần thạch cao chất lượng cao là lựa chọn lý tưởng cho nhà cấp 4 mái Nhật 3 phòng ngủ.
-
Trần thạch cao Vĩnh Tường SIÊU BẢO VỆ: Là sự kết hợp hoàn hảo giữa Tấm thạch cao Siêu Bảo Vệ VĨNH TƯỜNG-gyproc và Khung trần chìm Vĩnh Tường BASI® hoặc Khung trần chìm Vĩnh Tường ALPHA®. Hệ trần này bền đẹp, an toàn cho sức khỏe, nổi bật với các tính năng: siêu thanh lọc không khí 80%, siêu chống cháy, siêu chống nồm ẩm, siêu chống võng, siêu chống nứt.
Sự kết hợp hoàn hảo giữa khung trần và tấm thạch cao Vĩnh Tường -
Trần thạch cao Vĩnh Tường Siêu Bền X: Cấu tạo từ Tấm Thạch Cao VĨNH TƯỜNG-gyproc Siêu Bền X và Khung trần chìm Vĩnh Tường TIKA® hoặc khung trần chìm Vĩnh Tường ALPHA®. Nhờ công nghệ Lõi Tổ Ong kết hợp Sợi Siêu Bền, hệ trần có tính năng chống võng vượt trội, trọng lượng nhẹ hơn 10% các tấm thạch cao thông thường. Đồng thời, khả năng uốn cong linh hoạt giúp thiết kế nhiều kiểu dáng trần chìm đẹp mắt, ấn tượng.
-
La phông Vĩnh Tường Ánh Kim: Phù hợp với kiểu nhà cấp 4 mái Nhật 3 phòng ngủ bởi có thể thi công nhanh và đa dạng mẫu mã. Trần sử dụng la phông Vĩnh Tường Ánh Kim sở hữu những ưu điểm vượt trội: không cong vênh, cách nhiệt vượt trội (giảm đến 5 độ C), dễ cắt góc, chịu nước, bền trên 5 năm và bảo hành 5 năm bay màu hoa văn. Sản phẩm cam kết “5 không”: Không bay màu – Không giòn bể – Không cháy – Không độc hại – Không bay thốc, đảm bảo an toàn và thân thiện môi trường.
Bộ sưu tập 5 mẫu Tấm trang trí Vĩnh Tường DECO® Ánh Kim mới nhấtĐể nhận thông tin chi tiết và báo giá các giải pháp trần nhà cấp 4 mái Nhật 3 phòng ngủ, bạn có thể liên hệ trực tiếp với các đơn vị cung cấp vật liệu uy tín.
Mẫu Nhà Cấp 4 Mái Nhật 3 Phòng Ngủ Đơn Giản, Gần Gũi ở Nông Thôn
Đối với những ai yêu thích sự yên bình, mộc mạc của vùng quê, các mẫu nhà cấp 4 nông thôn đơn giản mái Nhật 3 phòng ngủ là lựa chọn lý tưởng. Những thiết kế này thường không quá cầu kỳ, chú trọng đến không gian mở và khoảng sân rộng rãi.
Mẫu nhà cấp 4 mái Nhật 3 phòng ngủ đơn giản với thiết kế hiện đại, tinh tế ở nông thôn
Mẫu nhà cấp 4 mái Nhật 3 phòng ngủ ở nông thôn đẹp mắt, tiết kiệm chi phí
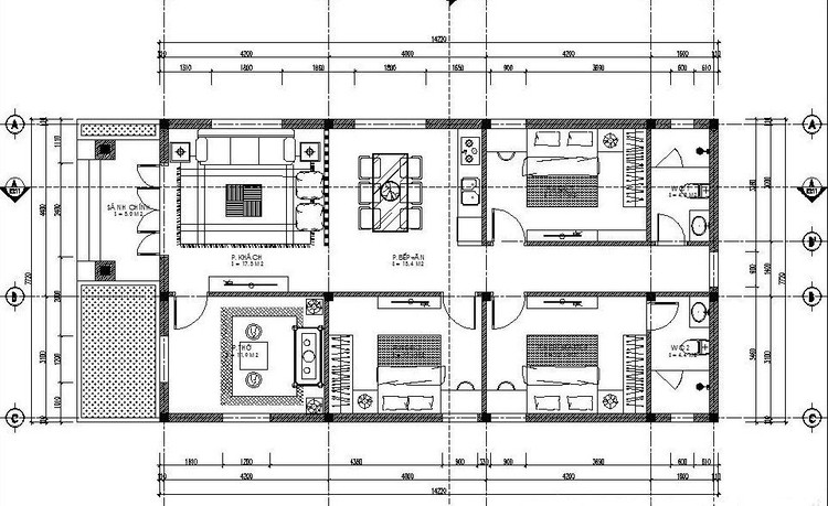
Bản vẽ thiết kế nhà cấp 4 mái Nhật 3 phòng ngủ 1 phòng thờ đơn giản, tối ưu
Mẫu Nhà Cấp 4 Mái Nhật 3 Phòng Ngủ Hiện Đại, Tinh Tế
Các gia đình trẻ thường ưa chuộng mẫu nhà cấp 4 mái Nhật 3 phòng ngủ hiện đại. Dù mang vẻ đẹp của sự đơn giản, các mẫu này vẫn toát lên sự sang trọng, tiện nghi, phù hợp với nhịp sống năng động.
Mẫu nhà cấp 4 mái Nhật 3 phòng ngủ hiện đại với phong cách tối giản
Mẫu nhà cấp 4 mái Nhật 3 phòng ngủ 120m2 hiện đại, có tiểu cảnh và chỗ đỗ xe
Mẫu nhà cấp 4 mái Nhật 3 phòng ngủ được ưa chuộng với trần giật cấp
Mẫu nhà cấp 4 mái Nhật 3 phòng ngủ độc đáo với không gian xanh mát
Mẫu Nhà Cấp 4 Mái Nhật 3 Phòng Ngủ Sang Trọng, Đẳng Cấp
Nếu bạn muốn một ngôi nhà cấp 4 mái Nhật mang hơi hướng biệt thự mini, những mẫu thiết kế sang trọng dưới đây sẽ là gợi ý hoàn hảo. Điểm nhấn là tone màu tối giản kết hợp hệ thống đèn vàng ấm cúng, tạo nên không gian sống đẳng cấp và tinh tế.
Mẫu nhà cấp 4 mái Nhật 3 phòng ngủ sang trọng, theo hơi hướng biệt thự mini
Mẫu nhà cấp 4 mái Nhật 3 phòng ngủ tinh tế, nguy nga
Mẫu Nhà Cấp 4 Mái Nhật 3 Phòng Ngủ Diện Tích 100m2
Mẫu nhà cấp 4 đẹp 100m2 3 phòng ngủ mái Nhật nổi bật với không gian rộng rãi, phù hợp cho gia đình từ 3-6 thành viên. Với kiểu nhà này, bạn nên ưu tiên thiết kế đơn giản, không quá cầu kỳ nhưng vẫn đảm bảo đầy đủ công năng sử dụng.
Mẫu nhà cấp 4 mái Nhật 3 phòng ngủ 100m2 với vật liệu thạch cao hiện đại
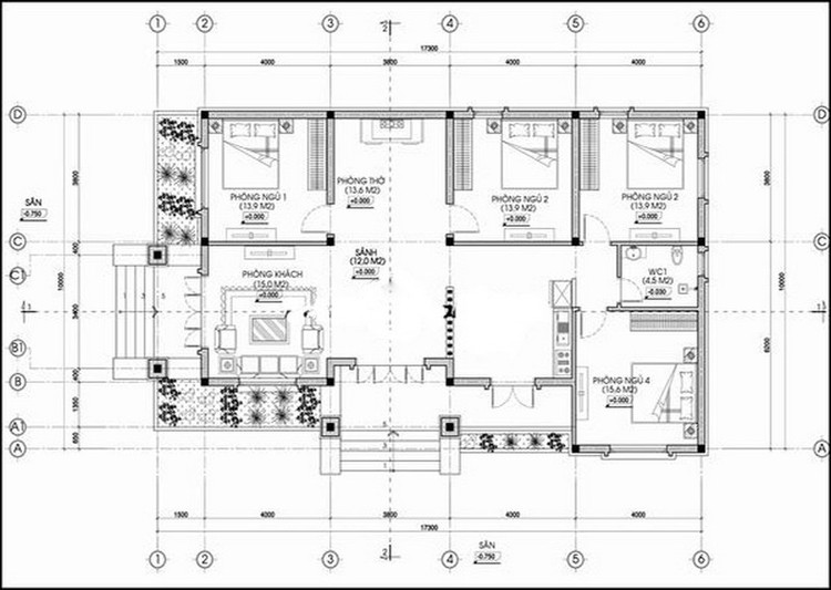
Bản vẽ nhà cấp 4 mái Nhật 3 phòng ngủ 100m2 với công năng đầy đủ và tối ưu
Mẫu Nhà Cấp 4 Mái Nhật 3 Phòng Ngủ Diện Tích 120m2
Kiểu nhà này thường được thiết kế theo cấu trúc liền mạch, với các phòng được sắp xếp hợp lý, tối ưu không gian và tính thẩm mỹ cao. Đây là diện tích lý tưởng để kiến tạo một không gian sống tiện nghi, thoáng đãng.
Mẫu nhà cấp 4 mái Nhật 3 phòng ngủ 120m2 với cửa thông gió trên mái
Bản vẽ nhà cấp 4 mái Nhật 3 phòng ngủ hợp phong thủy, mang lại may mắn
Mẫu Nhà Cấp 4 Mái Nhật 3 Phòng Ngủ Hình Chữ L Tiện Nghi
Mẫu nhà cấp 4 chữ L mái Nhật 3 phòng ngủ sẽ giúp không gian trong nhà thông thoáng hơn, thiết kế hai cửa chính tiện lợi cho việc sinh hoạt. Đặc biệt, bạn có thể tận dụng phần sân khuyết góc để làm sân phơi hoặc chỗ đậu xe, tạo nên một khoảng không gian đa năng.
Mẫu nhà cấp 4 mái Nhật 3 phòng ngủ chữ L với thiết kế hiện đại, tiện nghi
Mẫu nhà cấp 4 mái Nhật 3 phòng ngủ tiện nghi, có ống khói và hai cửa chính
Mẫu Nhà Cấp 4 Mái Nhật 3 Phòng Ngủ Có Sân Vườn Thoáng Đãng
Đặc trưng của nhà cấp 4 mái Nhật là thường kết hợp cùng khoảng sân vườn thoáng rộng. Gia chủ có thể tận dụng phần không gian này để làm chỗ đậu xe, đặt bàn ghế sinh hoạt ngoài trời, hoặc tạo một khu vườn nhỏ xanh mát, mang lại không gian sống gần gũi thiên nhiên.
Mẫu nhà cấp 4 mái Nhật 3 phòng ngủ có sân vườn gần gũi thiên nhiên
Mẫu Nhà Cấp 4 Mái Nhật 3 Phòng Ngủ Kết Hợp Phòng Thờ Trang Nghiêm
Nếu diện tích đất thi công đủ rộng, việc thiết kế không gian phòng thờ riêng biệt là điều nên làm để đảm bảo tính trang nghiêm và tôn kính. Một phòng thờ được bố trí hợp lý sẽ mang lại sự an yên và thể hiện lòng hiếu thảo của gia chủ.
Mẫu nhà cấp 4 mái Nhật 3 phòng ngủ với thiết kế phòng thờ riêng biệt, trang trọng
Mẫu Nhà Cấp 4 Mái Nhật 3 Phòng Ngủ Tối Ưu Chi Phí
Để sở hữu một ngôi nhà cấp 4 mái Nhật 3 phòng ngủ với chi phí thi công thấp, bạn có thể tham khảo các mẫu dưới đây. Với những mẫu này, không cần thiết kế quá cầu kỳ mà nên tập trung vào tối ưu công năng sử dụng, lựa chọn vật liệu và phương án thi công hiệu quả.
Mẫu nhà cấp 4 mái Nhật 3 phòng ngủ với chi phí thi công thấp, đẹp mắt
Mẫu nhà cấp 4 mái Nhật 3 phòng ngủ nhỏ ở nông thôn dạng chữ U, tiết kiệm
Những Lưu Ý Quan Trọng Khi Xây Dựng Nhà Cấp 4 Mái Nhật 3 Phòng Ngủ
Để quá trình xây dựng nhà cấp 4 mái Nhật 3 phòng ngủ diễn ra suôn sẻ và đạt được kết quả tốt nhất, gia chủ cần lưu ý một số yếu tố quan trọng sau:
-
Xác định thời điểm khởi công: Việc tính toán thời gian khởi công hợp lý sẽ giúp dự án xây dựng được tiến hành thuận lợi, đúng tiến độ và đạt chất lượng cao nhất. Tránh mùa mưa bão để không ảnh hưởng đến chất lượng công trình.
-
Lựa chọn vật liệu xây dựng chất lượng: Để chọn được vật liệu chất lượng cao với giá cả phải chăng, bạn có thể tham khảo từ những ngôi nhà đã được xây dựng và so sánh giá cả, chất lượng tại các nhà cung cấp khác nhau để có thông tin khách quan nhất. Điều này không chỉ ảnh hưởng đến độ bền mà còn đến chi phí tổng thể.
-
Tìm đơn vị thi công đáng tin cậy: Đây là một yếu tố then chốt quyết định chất lượng và tiến độ công trình. Bạn nên xem xét nhiều đơn vị khác nhau, kiểm tra hồ sơ năng lực, các dự án đã thực hiện và phản hồi từ khách hàng trước khi quyết định chọn một đơn vị ưng ý nhất.
-
Lập dự toán chi phí xây nhà: Việc này sẽ giúp bạn dễ dàng hơn trong việc lựa chọn loại nhà và phong cách phù hợp với ngân sách của mình. Một bản dự toán chi tiết sẽ giúp kiểm soát chi phí hiệu quả và tránh phát sinh ngoài ý muốn. Để có thể tạo ra những không gian sống ấm cúng và những bức tải ảnh sinh nhật đẹp nhất trong ngôi nhà mới, việc chuẩn bị tài chính kỹ lưỡng là vô cùng cần thiết.
Xây dựng nhà cấp 4 mái Nhật 3 phòng ngủ cần tìm đơn vị cung cấp vật liệu uy tínĐể tạo nên một không gian sống hoàn hảo, không chỉ là kiến trúc mà còn là việc tạo dựng những kỷ niệm. Hay đôi khi, chỉ là thư giãn với những câu thơ 7 chữ là thể thơ gì để cảm nhận sâu sắc hơn về vẻ đẹp của ngôn ngữ và cuộc sống.
Chi Phí Xây Dựng Nhà Cấp 4 Mái Nhật 3 Phòng Ngủ: Cần Biết Gì?
Chi phí xây dựng nhà cấp 4 mái Nhật 3 phòng ngủ sẽ tùy thuộc vào nhiều yếu tố như phong cách thiết kế, diện tích xây dựng, loại hình vật liệu sử dụng, đơn giá nhân công tại từng địa phương, và các yêu cầu đặc biệt khác của gia chủ. Để nhận được báo giá chi tiết và chính xác nhất cho công trình của mình, bạn vui lòng liên hệ trực tiếp với các đơn vị thiết kế và thi công uy tín. Họ sẽ khảo sát và tư vấn cụ thể dựa trên nhu cầu và ngân sách của bạn.
Kiến trúc nhà cấp 4 mái Nhật 3 phòng ngủ với nhiều yếu tố ảnh hưởng chi phí
Câu Hỏi Thường Gặp (FAQs) về Nhà Cấp 4 Mái Nhật 3 Phòng Ngủ
Nhà cấp 4 mái Nhật 3 phòng ngủ là gì?
Mẫu nhà cấp 4 mái Nhật 3 phòng ngủ là kiến trúc nhà một tầng với mái kiểu Nhật, thường có độ dốc thấp và các lớp mái xếp chồng lên nhau hoặc vươn rộng ra bốn phía. Thiết kế này được lấy ý tưởng từ Nhật Bản nhưng đã được điều chỉnh để phù hợp với thẩm mỹ và điều kiện khí hậu của Việt Nam. Mái Nhật đảm bảo tính thoát nước tốt khi trời mưa, đồng thời mang lại vẻ đẹp hiện đại, thanh lịch và không kém phần sang trọng. Phong cách kiến trúc này là sự lựa chọn lý tưởng cho những ai muốn có một không gian sống tiện nghi, đẹp mắt và hài hòa với thiên nhiên. Các chi tiết thiết kế thường tối giản nhưng tinh tế, tạo nên một tổng thể ấn tượng, đặc biệt là với các khu vực như wyndham grand vedana ninh binh nơi sự giao hòa giữa thiên nhiên và kiến trúc được đánh giá cao.
Chi phí xây dựng nhà cấp 4 mái Nhật 3 phòng ngủ bao nhiêu?
Chi phí xây dựng nhà cấp 4 mái Nhật 3 phòng ngủ không có một mức giá cố định mà sẽ thay đổi tùy thuộc vào nhiều yếu tố. Các yếu tố chính bao gồm: phong cách thiết kế (hiện đại, tối giản, tân cổ điển), loại hình vật liệu xây dựng (cao cấp hay phổ thông), diện tích tổng thể của ngôi nhà, vị trí địa lý của công trình (thành thị hay nông thôn), và đơn giá nhân công tại thời điểm thi công. Để nhận được báo giá chi tiết và chính xác nhất cho ngôi nhà mơ ước của mình, bạn nên liên hệ trực tiếp với các đơn vị thiết kế và thi công chuyên nghiệp. Họ sẽ cung cấp bảng báo giá cụ thể dựa trên bản vẽ thiết kế và các yêu cầu riêng của bạn. Đôi khi, chỉ cần thưởng thức một món ăn ngon như cách làm chả tôm thịt lợn trong ngôi nhà mới cũng đủ cảm thấy hạnh phúc với khoản đầu tư xứng đáng này.
Trong bài viết này, CÔNG TY TNHH MÔI TRƯỜNG HSE đã tổng hợp và giới thiệu đến bạn các mẫu nhà cấp 4 mái Nhật 3 phòng ngủ đẹp, hiện đại và hợp xu hướng nhất năm 2025. Hy vọng rằng, thông qua những phân tích chi tiết và hình ảnh minh họa sống động, bạn có thể tìm được thiết kế ưng ý, phù hợp với sở thích cá nhân, nhu cầu sử dụng và ngân sách hiện có của gia đình.
Việc xây dựng một ngôi nhà là một quyết định lớn, đòi hỏi sự chuẩn bị kỹ lưỡng về cả tài chính và ý tưởng thiết kế. Hãy dành thời gian tìm hiểu, tham khảo ý kiến từ các chuyên gia và lựa chọn đối tác thi công uy tín để biến ước mơ về tổ ấm thành hiện thực.
Nếu bạn cần hỗ trợ thêm về tư vấn thiết kế, lựa chọn vật liệu xây dựng, hoặc các giải pháp về an toàn và môi trường cho công trình, đừng ngần ngại liên hệ với CÔNG TY TNHH MÔI TRƯỜNG HSE. Chúng tôi luôn sẵn lòng đồng hành cùng bạn để kiến tạo những không gian sống không chỉ đẹp mà còn bền vững và an toàn.
Tài Liệu Tham Khảo
- Vĩnh Tường (2025). Mẫu Nhà Cấp 4 Đẹp Đơn Giản Hiện Đại Mái Nhật 3 Phòng Ngủ 2025. Truy cập từ https://vinhtuong.com/mau-nha-cap-4-dep-don-gian-hien-dai.
- Internet (Các hình ảnh minh họa trong bài).
