Trong bối cảnh đô thị hóa ngày càng phát triển, xu hướng tìm kiếm không gian sống tối giản, tiện nghi nhưng vẫn hài hòa với thiên nhiên đang trở nên phổ biến. Đặc biệt, Mẫu Nhà 1 Tầng đẹp Hiện đại đã trở thành lựa chọn hàng đầu cho nhiều gia đình Việt, từ khu vực nông thôn yên bình đến những vùng ven đô thị. Những ngôi nhà này không chỉ đáp ứng đầy đủ công năng sinh hoạt mà còn thể hiện gu thẩm mỹ tinh tế, phù hợp với xu hướng kiến trúc bền vững. Bài viết này của CÔNG TY TNHH MÔI TRƯỜNG HSE sẽ cung cấp một cái nhìn toàn diện về các ưu điểm, bản vẽ chi tiết, và tổng hợp những mẫu nhà 1 tầng đẹp hiện đại nhất, giúp bạn dễ dàng hiện thực hóa ngôi nhà mơ ước của mình.
Ưu Điểm Nổi Bật Của Mẫu Nhà 1 Tầng Đẹp Hiện Đại
Những mẫu nhà 1 tầng đẹp hiện đại ngày càng được ưa chuộng nhờ vào hàng loạt ưu điểm vượt trội. Đây không chỉ là giải pháp tối ưu cho không gian sống mà còn mang lại giá trị kinh tế và thẩm mỹ cao.
- Tiết kiệm chi phí: Với kết cấu đơn giản, việc xây dựng nhà 1 tầng giúp rút ngắn thời gian thi công, giảm thiểu chi phí vật liệu và nhân công đáng kể. Hơn nữa, việc bảo trì và sửa chữa cũng dễ dàng, ít tốn kém hơn so với các công trình nhiều tầng phức tạp. Điều này đặc biệt quan trọng với các gia đình có ngân sách hạn chế nhưng vẫn mong muốn sở hữu một không gian sống tiện nghi.
- Tối ưu diện tích sử dụng: Dạng nhà ống hoặc nhà cấp 4 thường phát huy tối đa ưu điểm này, đặc biệt phù hợp với đặc thù quỹ đất rộng ở nông thôn hoặc các khu đất có chiều ngang khiêm tốn. Dù chỉ có một tầng, nhưng với thiết kế hợp lý, gia chủ vẫn có thể bố trí đầy đủ phòng khách, bếp, phòng ngủ và khu vực sinh hoạt chung một cách khoa học, thông thoáng.
- Phong cách thiết kế đa dạng: Các mẫu nhà 1 tầng đẹp hiện đại ngày nay vô cùng phong phú về kiểu dáng, từ phong cách tối giản, hiện đại đến tân cổ điển hoặc thậm chí là sự kết hợp hài hòa giữa truyền thống và đương đại. Điều này giúp người dùng dễ dàng lựa chọn mẫu nhà phù hợp với sở thích cá nhân, nhu cầu sử dụng và bối cảnh kiến trúc xung quanh.
Mẫu nhà ống 1 tầng hiện đại với thiết kế đa dạng, tối ưu chi phí
Mẫu nhà 1 tầng hiện đại đa dạng phong cách, tối ưu chi phí (Nguồn: Internet)
Để hiểu rõ hơn về việc lựa chọn và thiết kế không gian sống, bạn có thể tham khảo thêm một số văn bản nghị luận về một vấn đề xã hội để có cái nhìn đa chiều về các xu hướng sống hiện nay.
Phân Tích Bản Vẽ Thiết Kế Nhà 1 Tầng Đẹp Hiện Đại
Để có cái nhìn rõ ràng hơn về cấu trúc và cách bố trí không gian của những mẫu nhà 1 tầng đẹp hiện đại, chúng ta hãy cùng tham khảo một số bản vẽ thiết kế nổi bật dưới đây.
Bản Vẽ Mặt Bằng Mẫu Nhà 1 Tầng Đơn Giản
Bản vẽ mặt bằng nhà 1 tầng đơn giản, đầy đủ tiện nghi
Bản vẽ mặt bằng mẫu nhà 1 tầng đơn giản, đầy đủ tiện nghi (Nguồn: Internet)
Bản vẽ mặt bằng tổng thể này thể hiện cách bố trí không gian khoa học và tiện dụng trong một ngôi nhà 1 tầng, rất phù hợp với diện tích đất dạng hình chữ nhật phổ biến. Ngay từ khu vực sân trước, không gian được chừa rộng để đậu xe máy, tạo lối vào thoáng đãng. Tiếp nối là phòng khách nằm gần sảnh chính, được thiết kế rộng rãi, là không gian tiếp khách và sinh hoạt chung của cả gia đình. Liền kề phòng khách là WC1, thuận tiện cho khách sử dụng.
Khu vực trung tâm nhà là phòng bếp và bàn ăn, bố trí liền kề tạo sự kết nối không gian, đồng thời giúp tiết kiệm diện tích và tăng tính tiện dụng. Cuối nhà là phòng ngủ master có diện tích lớn, đi kèm với WC riêng (WC2) và lối đi ra sân sau. Tổng thể mặt bằng được bố trí logic, tiết kiệm không gian nhưng vẫn đầy đủ tiện nghi, phù hợp với hầu hết mọi gia đình và nhu cầu sinh hoạt.
Bản Vẽ Thiết Kế Nhà Ống 5x20m 1 Tầng
Bản vẽ mặt bằng nhà ống 1 tầng là yếu tố quan trọng giúp gia chủ hình dung chính xác cách bố trí công năng, từ đó đưa ra quyết định hợp lý trong quá trình thi công. Trong bản vẽ này, ngôi nhà được thiết kế theo kiểu nhà ống với mặt tiền 5m, chiều sâu 20m. Ngôi nhà gồm 2 phòng ngủ được bố trí liền kề nhau, đảm bảo tính kết nối và sự tiện nghi. Phòng khách và bếp ăn được nằm ngay khu vực trung tâm, tạo không gian sinh hoạt chung thông thoáng và dễ dàng di chuyển.
Khu vực vệ sinh và phòng giặt được đặt lùi về phía cuối nhà để tách biệt khu sinh hoạt và nghỉ ngơi, giúp đảm bảo sự riêng tư và vệ sinh. Ngoài ra, mẫu nhà này còn có sân trước, sân sau và sân vườn hai bên, tận dụng tối đa ánh sáng và gió tự nhiên, giúp không gian luôn thoáng mát. Cách bố trí bất đối xứng giữa các không gian chức năng giúp hành lang di chuyển thêm rộng rãi và linh hoạt hơn.
Bản vẽ thiết kế nhà 1 tầng đẹp hiện đại 5x20m bố trí khoa học (Nguồn: Internet)
Bản Vẽ Thiết Kế Mẫu Nhà Ống 1 Tầng Hiện Đại 8x15m
Bản vẽ thiết kế mẫu nhà 1 tầng 8x15m
Bản vẽ thiết kế mẫu nhà 1 tầng 8x15m hiện đại (Nguồn: Internet)
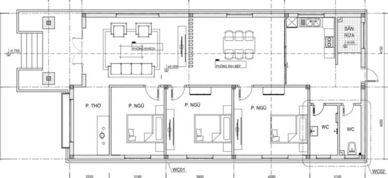
Mẫu nhà 1 tầng kích thước 8x15m là phương án thiết kế hợp lý, phù hợp với nhu cầu sinh hoạt của gia đình đông người. Với mặt tiền rộng và chiều sâu vừa phải, bản vẽ tận dụng hiệu quả từng mét vuông để bố trí không gian sinh hoạt tiện nghi và khoa học. Điểm nổi bật của thiết kế là 4 phòng ngủ liền kề, nằm về một bên dãy nhà, mang lại sự riêng tư cho từng thành viên. Bên cạnh đó, phòng thờ được đặt ở phía trước, vừa trang trọng, vừa đảm bảo yếu tố phong thủy.
Khu vực sinh hoạt chung gồm phòng khách, bếp và bàn ăn được bố trí dọc theo chiều dài còn lại của căn nhà, tạo không gian mở, thoáng đãng. Thiết kế 2 WC tách biệt (WC01 và WC02) ở hai đầu nhà giúp phân bổ công năng hợp lý, giảm tình trạng quá tải khi sử dụng. Tổng thể bản vẽ mang lại cảm giác gọn gàng, hiện đại, phù hợp với xu hướng xây dựng nhà ở hiện nay.
Bản Vẽ Mẫu Nhà 1 Tầng 3 Phòng Ngủ Hiện Đại
Bản vẽ mẫu nhà 1 tầng 3 phòng ngủ hiện đại cho gia đình 4-6 người (Nguồn: Internet)
Mẫu nhà 1 tầng với bố cục 3 phòng ngủ được thiết kế đơn giản, khoa học, rất phù hợp với gia đình có từ 4-6 thành viên. Với mặt bằng hình chữ nhật dài, bản vẽ tối ưu diện tích hiệu quả, đồng thời đảm bảo đầy đủ công năng sử dụng. Từ cổng vào là sân cây cảnh nhỏ, tạo khoảng đệm xanh mát trước khi bước vào phòng khách. Liền kề đó là khu vực bếp và phòng ăn, thiết kế mở giúp tạo sự kết nối giữa các không gian mà vẫn thông thoáng.
Phía sau là 3 phòng ngủ liên tiếp, trong đó hai phòng giữa có diện tích tương đương. Phòng ngủ cuối (P.Ngủ 3) nằm gần WC 2 đảm bảo sự riêng tư. Nhà có tổng cộng 2 nhà vệ sinh (WC 1 ở giữa và WC 2 phía sau) giúp sinh hoạt tiện lợi, không bị quá tải. Tổng thể bản vẽ phù hợp với diện tích đất dạng ống phổ biến, phân bố hợp lý cho gia đình nhiều thế hệ cùng sinh sống.
Tổng Hợp Các Mẫu Nhà 1 Tầng Đẹp Hiện Đại, Thiết Kế Xu Hướng 2025
Năm 2025 chứng kiến sự lên ngôi của các mẫu nhà 1 tầng đẹp hiện đại với đa dạng phong cách và tối ưu công năng. Dưới đây là những gợi ý thiết kế được yêu thích nhất, phù hợp với nhiều diện tích và nhu cầu khác nhau.
Mẫu Nhà 1 Tầng Hiện Đại Diện Tích 5x15m
Mẫu nhà 1 tầng có kích thước 5x15m thường ưu tiên phong cách kiến trúc hiện đại, đề cao sự tối giản và tinh tế trong thiết kế. Thay vì các chi tiết cầu kỳ, mặt tiền ngôi nhà được làm nổi bật qua cách phối màu khéo léo và những đường nét thiết kế mạnh mẽ, rõ ràng. Chính sự kết hợp hài hòa này đã mang đến không gian sống hiện đại, trẻ trung nhưng vẫn phù hợp với cảnh quan thiên nhiên và đáp ứng đầy đủ nhu cầu sinh hoạt cho cả gia đình.
Mẫu nhà 1 tầng hiện đại 5x15m với thiết kế hiện đại, tiện nghi
Mẫu nhà 1 tầng hiện đại 5x15m với thiết kế hiện đại, tiện nghi (Nguồn: Internet)
Thiết kế mặt tiền nhà 1 tầng hiện đại 5x15m thoáng mát, rộng rãi
Thiết kế mặt tiền mẫu nhà 1 tầng đẹp hiện đại 5x15m thoáng mát, rộng rãi (Nguồn: Internet)
Mẫu Nhà 1 Tầng Hiện Đại Diện Tích 5x17m
Mẫu nhà 1 tầng diện tích 5x17m là giải pháp thiết kế lý tưởng cho những mảnh đất có mặt tiền 5m và chiều sâu 17m. Với lối kiến trúc đơn giản nhưng tinh tế, mẫu nhà này giúp tận dụng tối đa diện tích sử dụng mà vẫn đảm bảo công năng đầy đủ cho gia đình. Đồng thời, chi phí xây dựng cũng được tối ưu, phù hợp với ngân sách của nhiều hộ gia đình hiện nay.
Điểm nhấn của mẫu nhà 1 tầng này đến từ việc sử dụng các vật liệu thông minh như tấm bê tông nhẹ DURAflex Low Carbon không chỉ giúp tăng tính thẩm mỹ mà còn đảm bảo độ bền chắc, chịu ẩm vượt trội và an toàn cho sức khỏe.
Mẫu nhà 1 tầng đẹp, ấm cúng có kích thước 5x17m
Mẫu nhà 1 tầng đẹp hiện đại, ấm cúng có kích thước 5x17m (Nguồn: Internet)
Kiến trúc nhà 1 tầng 5×17 tận dụng tối đa diện tích, phù hợp với những lô đất hạn chế
Kiến trúc mẫu nhà 1 tầng đẹp hiện đại 5×17 tận dụng tối đa diện tích, phù hợp với những lô đất hạn chế (Nguồn: Internet)
Mẫu Nhà 1 Tầng Hiện Đại Diện Tích 5x20m
Mẫu nhà 1 tầng đẹp hiện đại 5x20m phù hợp với những gia đình mong muốn có một không gian sống hiện đại trên nền đất có chiều ngang vừa phải. Với thiết kế thông minh, mẫu nhà này tận dụng hiệu quả từng mét vuông diện tích đất, đảm bảo sự thông thoáng và tiện nghi trong sinh hoạt hàng ngày. Không gian của ngôi nhà được kiến trúc sư bố trí hợp lý giữa các khu vực giúp tối ưu công năng, đồng thời mang lại cảm giác rộng rãi, thoải mái.
Thiết kế nhà cấp 4 đẹp 5×20 trẻ trung, năng động
Thiết kế mẫu nhà 1 tầng đẹp hiện đại 5×20 trẻ trung, năng động (Nguồn: Internet)
Mẫu nhà 1 tầng hiện đại 5×20 sang trọng, hợp xu hướng
Mẫu nhà 1 tầng hiện đại 5×20 sang trọng, hợp xu hướng (Nguồn: Internet)
Mẫu Nhà 1 Tầng Hiện Đại Diện Tích 5x25m
Với diện tích 5x25m, mẫu nhà 1 tầng đẹp hiện đại này đang là lựa chọn phổ biến nhờ thiết kế tiện nghi và khả năng tối ưu diện tích hiệu quả. Thiết kế nhà không chỉ linh hoạt về phong cách mà còn thể hiện được dấu ấn của chủ nhân qua từng chi tiết kiến trúc. Điểm nổi bật nhất trong cấu trúc của mẫu nhà này chính là phần mặt tiền rộng rãi, có tính thẩm mỹ cao. Không gian ngôi nhà được bố trí các gam màu hài hòa, từng đường nét tinh tế, vừa đảm bảo yếu tố phong thủy vừa tạo nên một mẫu nhà đẹp thu hút.
Mẫu nhà 1 tầng hiện đại có kích thước 5×25 đẹp, bền vững theo thời gian
Mẫu nhà 1 tầng hiện đại có kích thước 5×25 đẹp, bền vững theo thời gian (Nguồn: Internet)
Thiết kế mẫu nhà 1 tầng hiện đại với không gian mở, hài hòa với thiên nhiên
Thiết kế mẫu nhà 1 tầng đẹp hiện đại với không gian mở, hài hòa với thiên nhiên (Nguồn: Internet)
Mẫu Nhà 1 Tầng Có Gác Lửng Hiện Đại
Mẫu nhà 1 tầng có gác lửng hiện đại đang là xu hướng thiết kế nhà ở thông minh được nhiều gia chủ lựa chọn. Kiến trúc ngôi nhà khéo léo kết hợp giữa sự tiện nghi của nhà một tầng và sự linh hoạt của gác lửng nhằm tối ưu hóa diện tích sử dụng, đồng thời tăng thêm không gian sinh hoạt cho gia đình.
Để tăng độ bền, sự tiện nghi và tối ưu chi phí xây dựng cho mẫu nhà gác lửng này, bạn nên lựa chọn tấm bê tông đúc sẵn DURAflex Low Carbon. Với khả năng chịu ẩm, chống cháy, độ bền vượt trội và bề mặt phẳng mịn, đây là giải pháp lý tưởng cho các hạng mục như tấm lót sàn gác lửng, vách ngăn phòng, trần nhà hay ốp tường nội, ngoại thất.
Mẫu nhà 1 tầng có gác lửng hiện đại đáp ứng nhu cầu sinh hoạt của các gia đình trẻ
Mẫu nhà 1 tầng có gác lửng hiện đại đáp ứng nhu cầu sinh hoạt của các gia đình trẻ (Nguồn: Internet)
Mẫu nhà 1 tầng có gác lửng đẹp, nội thất sang trọng
Mẫu nhà 1 tầng có gác lửng đẹp hiện đại, nội thất sang trọng (Nguồn: Internet)
Mẫu Nhà 1 Tầng Có Cầu Thang Hiện Đại
Thiết kế mẫu nhà 1 tầng có cầu thang tối giản, hiện đại đồng thời còn gây ấn tượng nhờ chi tiết cầu thang được bố trí tinh tế. Ngoài chức năng kết nối không gian, cầu thang còn góp phần làm nổi bật gu thẩm mỹ của gia chủ. Việc lựa chọn thiết kế cầu thang xoắn hay thẳng tùy thuộc vào diện tích và sở thích cá nhân, giúp mang lại sự hài hòa và tiện nghi cho không gian sống.
Mẫu nhà 1 tầng có cầu thang hiện đại giúp tăng thêm điểm nhấn thẩm mỹ cho ngôi nhà
Mẫu nhà 1 tầng có cầu thang hiện đại giúp tăng thêm điểm nhấn thẩm mỹ cho ngôi nhà (Nguồn: Internet)
Mẫu nhà 1 tầng có cầu thang tối giản, hiện đại
Mẫu nhà 1 tầng có cầu thang tối giản, hiện đại (Nguồn: Internet)
Mẫu Nhà 1 Tầng Có 1 Tum Hiện Đại
Với lối kiến trúc thông minh, tận dụng triệt để diện tích, mẫu nhà 1 tầng có tum là giải pháp lý tưởng trong thiết kế nhà ở hiện đại. Phần tum được xây dựng cao hơn mặt sàn chính, không chỉ đóng vai trò mở rộng diện tích sử dụng mà còn tạo nên điểm nhấn cho kiến trúc ngôi nhà. Nhờ thiết kế linh hoạt và tối ưu không gian, mẫu nhà này ngày càng được ưa chuộng ở cả đô thị lẫn nông thôn.
Mẫu nhà 1 tầng có 1 tum đơn giản, dễ thi công
Mẫu nhà 1 tầng có 1 tum đơn giản, dễ thi công (Nguồn: Internet)
Mẫu nhà 1 tầng có tum tạo điểm nhấn độc đáo giúp ngôi nhà cao ráo, thoáng mát hơn
Mẫu nhà 1 tầng có tum tạo điểm nhấn độc đáo giúp ngôi nhà cao ráo, thoáng mát hơn (Nguồn: Internet)
Mẫu Nhà 1 Tầng 2 Phòng Ngủ Hiện Đại
Đối với những gia đình có diện tích đất khiêm tốn thường sẽ ưu tiên xây dựng các mẫu nhà 1 tầng có 2 phòng ngủ. Kiểu nhà này không chỉ đáp ứng đủ nhu cầu sinh hoạt cho các thành viên mà còn mang lại sự thoải mái, tiện nghi tối đa. Với hai phòng ngủ được bố trí hợp lý, mẫu nhà đáp ứng tốt nhu cầu của các gia đình trẻ hoặc gia đình có ít thành viên mà vẫn đảm bảo tính thẩm mỹ và công năng.
Mẫu nhà 1 tầng 2 phòng ngủ thiết kế đơn giản, đầy đủ tiện nghi
Mẫu nhà 1 tầng 2 phòng ngủ thiết kế đơn giản, đầy đủ tiện nghi (Nguồn: Internet)
Bản vẽ thiết kế nhà 1 tầng 2 phòng ngủ đẹp mắt, tối ưu không gian
Bản vẽ thiết kế mẫu nhà 1 tầng đẹp hiện đại 2 phòng ngủ đẹp mắt, tối ưu không gian (Nguồn: Internet)
Bản vẽ nhà 1 tầng dạng ống có 2 phòng ngủ liền kề giúp thuận tiện cho việc sinh hoạt
Bản vẽ mẫu nhà 1 tầng dạng ống có 2 phòng ngủ liền kề giúp thuận tiện cho việc sinh hoạt (Nguồn: Internet)
Mẫu Nhà 1 Tầng 3 Phòng Ngủ Hiện Đại
Mẫu nhà 1 tầng 3 phòng ngủ dành cho những gia đình có từ 4-6 thành viên hoặc mong muốn sở hữu không gian sống mở, hiện đại. Với 3 phòng ngủ riêng biệt được bố trí khoa học, mỗi thành viên đều có không gian riêng tư để nghỉ ngơi, thư giãn mà vẫn giữ được sự kết nối trong sinh hoạt chung. Ngoài ra, thiết kế mẫu nhà này còn dễ dàng tích hợp thêm các khu vực chức năng như phòng khách, bếp, phòng thờ hay sân vườn.
Mẫu nhà cấp 4 nông thôn 3 phòng ngủ đẹp, linh hoạt trong thiết kế
Mẫu nhà 1 tầng đẹp hiện đại 3 phòng ngủ linh hoạt trong thiết kế (Nguồn: Internet)
Mẫu nhà 1 tầng 3 phòng ngủ 5×20 kiểu dáng truyền thống, đầy đủ công năng
Mẫu nhà 1 tầng 3 phòng ngủ 5×20 kiểu dáng truyền thống, đầy đủ công năng (Nguồn: Internet)
Mẫu Nhà 1 Tầng Đẹp Tổng Thể
Mẫu nhà 1 tầng đẹp hiện đại thường có thiết kế tối giản và chi phí hợp lý. Không gian ngôi nhà được bố trí không quá cầu kỳ nhưng vẫn thể hiện sự tinh tế trong từng đường nét kiến trúc, đồng thời đáp ứng đầy đủ công năng sử dụng. Sự kết hợp giữa không gian mở, gần gũi với thiên nhiên và tính tiện nghi trong sinh hoạt khiến mẫu nhà 1 tầng đẹp hiện đại ngày càng được ưa chuộng.
Bên cạnh đó, khi kết hợp sử dụng các vật liệu chất lượng như tấm xi măng xanh đầu tiên tại Việt Nam DURAflex Low Carbon, mẫu nhà 1 tầng không chỉ ghi điểm với tính thẩm mỹ cao mà còn bền đẹp theo thời gian.
Mẫu nhà 1 tầng tối ưu không gian sống, tiết kiệm chi phí
Mẫu nhà 1 tầng đẹp hiện đại tối ưu không gian sống, tiết kiệm chi phí (Nguồn: Internet)
Thiết kế mẫu nhà cấp 4 nông thôn dạng ống chắc chắn, bền vững theo thời gian
Thiết kế mẫu nhà 1 tầng đẹp hiện đại dạng ống chắc chắn, bền vững theo thời gian (Nguồn: Internet)
Mẫu Nhà 1 Tầng Hiện Đại Theo Phong Cách
Mẫu nhà 1 tầng đẹp hiện đại mang đến sự kết hợp hài hòa giữa thẩm mỹ và công năng, tạo nên không gian sống trẻ trung, phóng khoáng. Thiết kế chú trọng đến sự tối giản nhưng vẫn toát lên vẻ sang trọng thông qua cách sử dụng vật liệu cao cấp, màu sắc tươi sáng và bố trí các cửa kính lớn đón sáng tự nhiên. Chính sự khéo léo trong bố trí giúp tối ưu hóa diện tích, mở rộng không gian sống và kết nối với thiên nhiên bên ngoài.
Mẫu nhà 1 tầng hiện đại đang là xu hướng nhà ở được yêu thích nhất 2025
Mẫu nhà 1 tầng hiện đại đang là xu hướng nhà ở được yêu thích nhất 2025 (Nguồn: Internet)
Mẫu nhà cấp 4 nông thôn 250 triệu dạng ống thanh lịch, dễ bảo trì
Mẫu nhà 1 tầng đẹp hiện đại dạng ống thanh lịch, dễ bảo trì (Nguồn: Internet)
Đôi khi, để thư giãn sau những giờ làm việc căng thẳng, một chuyến đi đến cà phê cá koi gần đây cũng là một ý tưởng không tồi, giúp làm mới tinh thần và tìm kiếm những nguồn cảm hứng mới cho không gian sống.
Mẫu Nhà 1 Tầng Chi Phí Thấp
Mẫu nhà 1 tầng chi phí thấp phù hợp với những ai mong muốn có một không gian sống tiện nghi mà vẫn tiết kiệm ngân sách. Kiểu nhà này thường có thiết kế thông minh tận dụng tối đa diện tích, đến sự linh hoạt trong bố trí công năng. Ngôi nhà 1 tầng sử dụng vật liệu như bê tông, tấm xi măng giả gỗ DURAwood Low Carbon và gam màu tươi sáng, toát lên vẻ đẹp thanh lịch, ấm cúng.
Mẫu nhà 1 tầng chi phí thấp thoáng mát, hài hòa với thiên nhiên
Mẫu nhà 1 tầng đẹp hiện đại chi phí thấp thoáng mát, hài hòa với thiên nhiên (Nguồn: Internet)
Mẫu nhà 1 tầng đẹp hiện đại có chi phí thấp thanh lịch, ấm cúng (Nguồn: Internet)
Mẫu Nhà 1 Tầng Mặt Tiền 5m
Mẫu nhà 1 tầng mặt tiền 5m phù hợp với những lô đất có chiều ngang khiêm tốn. Các gia chủ có thể bố trí linh hoạt từ 2 đến 3 phòng ngủ, phòng khách, khu bếp ăn và khoảng sân trước dùng để đậu xe. Thiết kế ngôi nhà thường ưu tiên sử dụng hệ cửa kính lớn nhằm đón sáng tự nhiên, tạo cảm giác thoáng đãng, mở rộng không gian và gần gũi với thiên nhiên bên ngoài.
Mẫu nhà 1 tầng mặt tiền 5m hiện đại, chuẩn xu hướng 2025
Mẫu nhà 1 tầng mặt tiền 5m hiện đại, chuẩn xu hướng 2025 (Nguồn: Internet)
Mặt tiền nhà ống đẹp 1 tầng thiết kế tối giản nhưng sang trọng
Mẫu mặt tiền nhà 1 tầng đẹp hiện đại thiết kế tối giản nhưng sang trọng (Nguồn: Internet)
Mẫu Nhà 1 Tầng Mặt Tiền 6m
Với mặt tiền 6m, mẫu nhà 1 tầng này thường có thiết kế hướng đến sự tối giản, không quá cầu kỳ về mặt ngoại thất nhưng vẫn đảm bảo tính thẩm mỹ và sự tiện nghi tối đa cho không gian sống bên trong. Không gian ngôi nhà được tính toán tỉ mỉ để bố trí các khu vực chức năng khoa học, tiện nghi nhất cho người sử dụng.
Mẫu nhà 1 tầng mặt tiền 6m đẹp, thu hút mọi ánh nhìn
Mẫu nhà 1 tầng đẹp hiện đại mặt tiền 6m thu hút mọi ánh nhìn (Nguồn: Internet)
Mẫu nhà 1 tầng mặt tiền 6m đẹp, phối màu tinh tế
Mẫu nhà 1 tầng đẹp hiện đại mặt tiền 6m phối màu tinh tế (Nguồn: Internet)
Mẫu Nhà 1 Tầng Mặt Tiền 7m
Mẫu nhà 1 tầng mặt tiền rộng 7m có thể đáp ứng nhiều phong cách thiết kế khác nhau từ đơn giản, hiện đại cho đến các phong cách sang trọng như Bắc Âu hay Địa Trung Hải. Điểm nhấn của ngôi nhà nhờ vào việc khéo léo bố trí các cửa sổ rộng đón ánh sáng tự nhiên cùng với phối màu ngoại thất hài hòa, mỗi chi tiết đều góp phần tạo nên một tổ ấm vừa tiện nghi vừa mang đậm dấu ấn chủ nhân.
Mẫu nhà 1 tầng mặt tiền 7m hiện đại, chuẩn không gian sống lý tưởng
Mẫu nhà 1 tầng mặt tiền 7m hiện đại, chuẩn không gian sống lý tưởng (Nguồn: Internet)
Mẫu nhà 1 tầng với mặt tiền 7m phù hợp đô thị hiện đại
Mẫu nhà 1 tầng đẹp hiện đại với mặt tiền 7m phù hợp đô thị hiện đại (Nguồn: Internet)
Mẫu Nhà 1 Tầng Diện Tích 40m2
Với diện tích xây dựng hạn chế khoảng 40m2, mẫu nhà 1 tầng này dành cho những ai yêu thích sự đơn giản, hiện đại với cách bố trí không gian vô cùng sáng tạo và linh hoạt. Dù có diện tích khiêm tốn, kiểu nhà này vẫn mang lại cảm giác rộng rãi và thoải mái nhờ vào thiết kế thông minh, tận dụng triệt để không gian. Mỗi khu vực trong nhà đều được bố trí hợp lý, phòng khách và phòng bếp được kết nối mở, tạo nên một không gian sinh hoạt chung ấm cúng, gần gũi. Bên cạnh đó, phòng ngủ cũng sẽ được thiết kế riêng biệt, mang đến sự riêng tư và thoải mái.
Mẫu nhà 1 tầng rộng 40m2 đẹp, đầy đủ công năng
Mẫu nhà 1 tầng đẹp hiện đại rộng 40m2 đầy đủ công năng (Nguồn: Internet)
Mẫu nhà 1 tầng 40m2 thiết kế đơn giản nhưng vẫn rất cuốn hút
Mẫu nhà 1 tầng đẹp hiện đại 40m2 thiết kế đơn giản nhưng vẫn rất cuốn hút (Nguồn: Internet)
Mẫu Nhà 1 Tầng Diện Tích 60m2
Mẫu nhà 1 tầng có diện tích khoảng 60m2 được thiết kế tinh tế, tối ưu hóa không gian để mang lại sự thoáng đãng và tiện nghi cho gia chủ. Nội thất ngôi nhà được sắp xếp khoa học, mỗi góc nhỏ đều được tận dụng khéo léo, đảm bảo hài hòa giữa tính thẩm mỹ và công năng sử dụng. Từ phòng khách rộng rãi, phòng ngủ ấm cúng cho đến khu bếp tiện nghi, tất cả đều được thiết kế nhằm phục vụ tối ưu cho sinh hoạt gia đình.
Mẫu nhà 1 tầng 60m2 thiết kế tinh tế, thanh lịch, tiện nghi
Mẫu nhà 1 tầng đẹp hiện đại 60m2 thiết kế tinh tế, thanh lịch, tiện nghi (Nguồn: Internet)
Mẫu nhà 1 tầng 60m2 đẹp, kết hợp không gian xanh và thiết kế mở
Mẫu nhà 1 tầng đẹp hiện đại 60m2 kết hợp không gian xanh và thiết kế mở (Nguồn: Internet)
Mẫu Nhà 1 Tầng Diện Tích 80m2
Mẫu nhà 1 tầng 80m2 gây ấn tượng bởi thiết kế mở, tận dụng tối đa ánh sáng tự nhiên. Bằng cách bố trí nội thất hài hòa, thông minh đã biến ngôi nhà trở thành tổ ấm rộng rãi hơn. Từ phòng khách thoáng đãng đến khu bếp tiện nghi và phòng ngủ ấm cúng, mỗi không gian trong mẫu nhà này đều được tính toán kỹ lưỡng để đảm bảo sự thoải mái tối đa cho gia chủ.
Mẫu nhà 1 tầng 80m2 đẹp, phổ biến
Mẫu nhà 1 tầng đẹp hiện đại 80m2 phổ biến (Nguồn: Internet)
Thiết kế nhà 1 tầng 80m2 đẹp, hiện đại, sang trọng
Thiết kế mẫu nhà 1 tầng đẹp hiện đại 80m2 sang trọng (Nguồn: Internet)
Mẫu Nhà 1 Tầng Diện Tích 100m2
Sở hữu diện tích xây dựng 100m2, mẫu nhà này được nhiều người yêu thích bởi tiện nghi nhưng vẫn đề cao giá trị thẩm mỹ và công năng. Với diện tích vừa phải không quá lớn, ngôi nhà được sắp xếp thông minh khi tích hợp đầy đủ các khu vực sinh hoạt từ phòng khách sang trọng, phòng ngủ tiện nghi cho đến không gian làm việc và thư giãn riêng tư. Điểm nổi bật của mẫu nhà 1 tầng 100m2 chính là cách bố trí không gian mở linh hoạt, tạo sự kết nối hài hòa giữa các phòng.
Các kiến trúc sư đã khéo léo sử dụng tấm xi măng DURAflex Low Carbon với ưu điểm chịu lực cao, khả năng chống cháy vượt trội vừa đảm bảo kết cấu vững chắc, vừa giúp công trình thi công nhanh chóng lại giúp tiết kiệm chi phí đáng kể.
Mẫu nhà 1 tầng 100m2 rộng rãi, đầy đủ tiện nghi
Mẫu nhà 1 tầng đẹp hiện đại 100m2 rộng rãi, đầy đủ tiện nghi (Nguồn: Internet)
Thiết kế nhà 1 tầng 100m2 với gam màu trắng, xám toát lên vẻ đẹp tinh tế, sang trọng
Thiết kế mẫu nhà 1 tầng đẹp hiện đại 100m2 với gam màu trắng, xám toát lên vẻ đẹp tinh tế, sang trọng (Nguồn: Internet)
Mẫu Nhà 1 Tầng Mái Thái
Thiết kế nhà mái Thái đang được ưa chuộng ở nước ta khi xây dựng các mẫu nhà 1 tầng đẹp hiện đại nhờ sự kết hợp hài hòa giữa tính thẩm mỹ và công năng sử dụng. Với kiến trúc mái Thái đặc trưng, mẫu nhà này không chỉ có vẻ ngoài thanh thoát, cao ráo mà còn đem lại cảm giác thông thoáng, mát mẻ cho không gian sống. Điểm đặc biệt của mẫu nhà 1 tầng mái Thái là khả năng thích nghi linh hoạt với nhiều diện tích khác nhau, từ nhỏ hẹp đến rộng rãi, đáp ứng nhiều nhu cầu sử dụng.
Mẫu nhà 1 tầng mái Thái đẹp, thanh thoát, thoáng đãng
Mẫu nhà 1 tầng mái Thái đẹp, thanh thoát, thoáng đãng (Nguồn: Internet)
Mẫu nhà 1 tầng mái Thái mang đến vẻ đẹp hiện đại, sang trọng
Mẫu nhà 1 tầng mái Thái mang đến vẻ đẹp hiện đại, sang trọng (Nguồn: Internet)
Mẫu Nhà 1 Tầng Mái Nhật
Mẫu nhà 1 tầng mái Nhật nổi bật với vẻ đẹp độc đáo, hiện đại trong từng đường nét. Thiết kế của ngôi nhà mái Nhật này đặc biệt phù hợp với khí hậu nhiệt đới, mang đến không gian sống mát mẻ vào mùa hè và ấm áp khi đông về. Nhà cấp 4 mái Nhật có độ dốc vừa phải, giúp tăng khả năng thoát nước hiệu quả. Điều này không chỉ đảm bảo tính thẩm mỹ mà còn tăng độ bền vững cho công trình.
Mẫu nhà cấp 4 mái Nhật 3 phòng ngủ mang lại tổng thể sang trọng
Mẫu nhà 1 tầng đẹp hiện đại mái Nhật 3 phòng ngủ mang lại tổng thể sang trọng (Nguồn: Internet)
Nhà 1 tầng thiết kế mái Nhật tính thẩm mỹ cao, bền vững theo thời gian
Mẫu nhà 1 tầng đẹp hiện đại thiết kế mái Nhật tính thẩm mỹ cao, bền vững theo thời gian (Nguồn: Internet)
Mẫu Nhà 1 Tầng Mái Bằng
Mẫu nhà 1 tầng mái bằng hiện đang được nhiều gia đình lựa chọn nhờ khả năng tối ưu chi phí xây dựng. Thiết kế kiểu nhà mái bằng này có phong cách tối giản, ít chi tiết rườm rà, giúp quá trình thi công diễn ra nhanh chóng và dễ dàng. Bên cạnh đó, phần diện tích đất còn lại có thể được tận dụng làm nhà vườn nhỏ đẹp, thoáng mát, tạo không gian sống gần gũi với thiên nhiên và nâng cao chất lượng cuộc sống.
Mẫu nhà 1 tầng mái bằng với đường nét thiết kế đơn giản, hiện đại
Mẫu nhà 1 tầng mái bằng với đường nét thiết kế đơn giản, hiện đại (Nguồn: Internet)
Mẫu nhà 1 tầng mái bằng đơn giản, tiết kiệm chi phí
Mẫu nhà 1 tầng mái bằng đơn giản, tiết kiệm chi phí (Nguồn: Internet)
Mẫu Nhà 1 Tầng Mái Xéo
Mẫu nhà 1 tầng mái xéo ngày càng được nhiều gia đình ưa chuộng nhờ thiết kế hiện đại, cá tính và tính ứng dụng cao. Phần mái nghiêng không chỉ tạo điểm nhấn kiến trúc độc đáo mà còn phát huy hiệu quả trong việc thoát nước nhanh, chống thấm tốt, đặc biệt phù hợp với những khu vực có khí hậu mưa nhiều hoặc thời tiết khắc nghiệt. Ngoài ra, thiết kế mái xéo còn giúp gia chủ tận dụng phần mái cao để làm kho chứa đồ hoặc gác lửng, vừa tiện lợi vừa tiết kiệm diện tích sử dụng trong nhà. Đây là giải pháp thiết kế thông minh, phù hợp với xu hướng nhà ở hiện đại.
Mẫu nhà 1 tầng mái xéo độc đáo, thoát nước mưa tốt
Mẫu nhà 1 tầng mái xéo độc đáo, thoát nước mưa tốt (Nguồn: Internet)
Nếu bạn đang tìm kiếm những ý tưởng độc đáo cho bữa ăn hàng ngày, có thể xem thêm bài viết về hàu làm món gì ngon để đổi vị, tạo không khí mới mẻ cho gia đình.
Mẫu Nhà 1 Tầng Mái Ngói
Mẫu nhà 1 tầng mái ngói với vẻ đẹp mộc mạc nhưng đầy cuốn hút, thiết kế mái ngói truyền thống tạo điểm nhấn cho toàn bộ kiến trúc ngôi nhà. Kiểu kiến trúc nhà mái ngói này thường phổ biến ở vùng nông thôn Việt Nam. Tuy nhiên ngày nay với đa dạng màu sắc ngói giúp gia chủ có thêm nhiều lựa chọn cho không gian sống của mình. Mái ngói không chỉ mang lại vẻ đẹp thẩm mỹ mà còn có khả năng cách nhiệt tốt, tạo không gian sống mát mẻ.
Mẫu nhà 1 tầng với mái ngói truyền thống
Mẫu nhà 1 tầng đẹp hiện đại với mái ngói truyền thống (Nguồn: Internet)
Mẫu nhà 1 tầng mái ngói với đường nét thiết kế đơn giản, hiện đại
Mẫu nhà 1 tầng mái ngói với đường nét thiết kế đơn giản, hiện đại (Nguồn: Internet)
Mẫu Nhà 1 Tầng Chữ L
Mẫu nhà 1 tầng chữ L là một lựa chọn thiết kế độc đáo, ngày càng được nhiều gia chủ quan tâm. Kiểu nhà chữ L này thường phù hợp với những khu đất có hình dáng đặc thù, không vuông vức. Nhờ kết cấu chữ L linh hoạt, ngôi nhà không chỉ tối ưu hóa diện tích sử dụng mà còn tạo ra khoảng trống lý tưởng để bố trí sân vườn, tiểu cảnh, hoặc khu vực đón nắng ở phần góc chữ L. Đây là phương án thiết kế vừa thông minh vừa thẩm mỹ, giúp không gian sống trở nên thoáng đãng, gần gũi với thiên nhiên.
Mẫu nhà 1 tầng chữ L mới mẻ, có sân vườn gần gũi thiên nhiên
Mẫu nhà 1 tầng đẹp hiện đại chữ L mới mẻ, có sân vườn gần gũi thiên nhiên (Nguồn: Internet)
Mẫu Nhà 1 Tầng Kiểu Vuông
Những mẫu nhà vuông 1 tầng không chỉ mang đến sự tiện nghi trong sinh hoạt mà còn thể hiện tính hài hòa và cân đối trong thiết kế. Với kết cấu bốn góc vuông vức, không gian bên trong dễ dàng phân chia công năng rõ ràng, giúp việc bố trí phòng ốc trở nên linh hoạt và khoa học hơn. Về mặt phong thủy, hình khối vuông tượng trưng cho sự ổn định, vững vàng là biểu tượng của sự đầy đủ, trọn vẹn. Chính vì vậy, nhà vuông thường được xem là kiểu nhà lý tưởng, mang lại cảm giác đoàn viên, bình yên cho gia đình.
Mẫu nhà 1 tầng kiểu vuông chuẩn phong thủy, thu hút tài lộc
Mẫu nhà 1 tầng đẹp hiện đại kiểu vuông chuẩn phong thủy, thu hút tài lộc (Nguồn: Internet)
Mẫu thiết kế nhà 1 tầng kiểu vuông cân đối, hiện đại
Mẫu thiết kế nhà 1 tầng đẹp hiện đại kiểu vuông cân đối, hiện đại (Nguồn: Internet)
Mẫu Nhà 1 Tầng Kiểu Hộp
Những mẫu nhà hộp 1 tầng thường được thiết kế theo hình chữ nhật, với mặt tiền hẹp và chiều sâu lớn. Sau khi hoàn thiện, tổng thể ngôi nhà có dáng vẻ giống như một “chiếc hộp” đơn giản nhưng gọn gàng và hiện đại. Kiểu kiến trúc này đặc biệt phù hợp với những khu đất có diện tích nhỏ hoặc nằm trong hẻm sâu. Nhờ kết cấu tiết kiệm và thi công không quá phức tạp, nhà hộp 1 tầng có chi phí xây dựng vừa phải, rất phù hợp với các gia đình có thu nhập trung bình đang tìm kiếm giải pháp nhà ở hiệu quả, tiện nghi và dễ bảo trì.
Mẫu nhà 1 tầng kiểu hộp phù hợp cho những khu đất hẹp
Mẫu nhà 1 tầng đẹp hiện đại kiểu hộp phù hợp cho những khu đất hẹp (Nguồn: Internet)
Mẫu Nhà 1 Tầng Kính
Những mẫu nhà kính 1 tầng hiện đại luôn tạo được dấu ấn mạnh mẽ nhờ vẻ ngoài sang trọng, tinh tế và đậm chất thời thượng. Với thiết kế sử dụng nhiều mảng kính lớn, kiểu nhà này mang đến không gian sống tràn ngập ánh sáng tự nhiên, đồng thời mở rộng tầm nhìn và tạo cảm giác thông thoáng tối đa. Đây là lựa chọn lý tưởng cho những gia đình yêu thích sự tiện nghi, cởi mở và gần gũi với thiên nhiên.
Mẫu nhà 1 tầng kính tràn ngập ánh sáng tự nhiên
Mẫu nhà 1 tầng đẹp hiện đại với thiết kế kính tràn ngập ánh sáng tự nhiên (Nguồn: Internet)
Đối với những người yêu thích sự tiện nghi và năng động, việc tìm kiếm một trung tâm thương mại quận 1 để vui chơi, mua sắm cũng là cách để tận hưởng cuộc sống hiện đại.
Mẫu Nhà 1 Tầng Kiểu Pháp
Mẫu nhà kiểu Pháp 1 tầng gây ấn tượng bởi vẻ đẹp cổ điển, sang trọng và những đường nét thiết kế đầy tinh xảo. Kiến trúc nổi bật với các chi tiết chạm trổ công phu, hoa văn mềm mại cùng hệ thống cột trụ lớn vững chắc, tạo nên cảm giác bề thế và đẳng cấp. Phần mái ngói truyền thống kết hợp hài hòa với bố cục đối xứng, giúp tổng thể ngôi nhà vừa nổi bật vừa cân đối. Đây là lựa chọn lý tưởng cho những gia chủ yêu thích vẻ đẹp hoài cổ nhưng vẫn muốn giữ nét thanh lịch, tinh tế trong không gian sống.
Mẫu nhà 1 tầng kiểu Pháp sang trọng, cổ điển
Mẫu nhà 1 tầng đẹp hiện đại kiểu Pháp sang trọng, cổ điển (Nguồn: Internet)
Mẫu nhà 1 tầng kiểu Pháp lộng lẫy, nổi bật
Mẫu nhà 1 tầng đẹp hiện đại kiểu Pháp lộng lẫy, nổi bật (Nguồn: Internet)
Các Yếu Tố Ảnh Hưởng Đến Thiết Kế Mẫu Nhà 1 Tầng Đẹp Hiện Đại
Để sở hữu một mẫu nhà 1 tầng đẹp hiện đại ưng ý, gia chủ cần xem xét nhiều yếu tố quan trọng. Những yếu tố này sẽ định hình phong cách, công năng và cả chi phí xây dựng.
Vị Trí Và Hướng Nhà
Khi thiết kế mẫu nhà 1 tầng đẹp hiện đại, gia chủ cần cân nhắc kỹ lưỡng đến yếu tố vị trí và hướng nhà. Việc lựa chọn hướng nhà phù hợp với bản mệnh của gia chủ không chỉ mang ý nghĩa phong thủy mà còn đem lại tài lộc và sức khỏe cho cả gia đình. Bên cạnh yếu tố phong thủy, bạn cũng cần tìm hiểu kỹ vị trí khu đất, hướng gió và ánh sáng. Sự kết hợp hài hòa giữa phong thủy và môi trường thực tế sẽ giúp ngôi nhà luôn thông thoáng, thoải mái và tràn đầy sinh khí.
Khi thiết kế nhà 1 tầng, nên cân nhắc kỹ yếu tố vị trí và hướng nhà phong thủy
Khi thiết kế mẫu nhà 1 tầng đẹp hiện đại, nên cân nhắc kỹ yếu tố vị trí và hướng nhà phong thủy (Nguồn: Internet)
Nhu Cầu Về Công Năng Sử Dụng
Mỗi gia đình khác nhau sẽ có những thói quen sinh hoạt và nhu cầu khác nhau. Do đó, gia chủ cần xác định rõ những nhu cầu này. Từ đó đưa ra những quyết định đúng đắn trong việc thiết kế mẫu nhà 1 tầng đẹp hiện đại để đáp ứng tốt nhất về công năng, tiện ích. Ví dụ, gia đình trẻ cần không gian mở, linh hoạt cho con cái, trong khi gia đình nhiều thế hệ có thể ưu tiên các phòng ngủ riêng biệt và khu vực chung rộng rãi.
Ngân Sách Đầu Tư
Việc xác định rõ ngân sách xây dựng ngay từ đầu là bước then chốt khi xây dựng mẫu nhà 1 tầng đẹp hiện đại, giúp gia chủ có thể tự chủ động trong việc lựa chọn phong cách kiến trúc, vật liệu và phân bổ chi phí hợp lý. Nếu không có kế hoạch tài chính rõ ràng dễ dẫn đến tình trạng đội chi phí, gây gián đoạn tiến độ hoặc buộc phải cắt giảm chất lượng công trình. Các khoản mục quan trọng cần được tính toán bao gồm: chi phí thiết kế, thi công phần thô, nhân công, vật liệu đến trang thiết bị nội thất.
Lưu Ý Khi Thi Công Mẫu Nhà 1 Tầng Hiện Đại
Quá trình thi công nhà 1 tầng hiện đại đòi hỏi sự chuẩn bị kỹ lưỡng và tuân thủ các nguyên tắc nhất định để đảm bảo chất lượng, thẩm mỹ và hiệu quả kinh tế.
Xác Định Phong Cách Thiết Kế
Mẫu nhà 1 tầng hiện đại thường linh hoạt trong phong cách thiết kế từ hiện đại tối giản đến tân cổ điển sang trọng hay truyền thống mộc mạc. Để sở hữu không gian sống hài hòa và tiện nghi, gia chủ cần xác định rõ nhu cầu sử dụng, gu thẩm mỹ cá nhân và đặc điểm của quỹ đất của gia đình mình. Việc lựa chọn đúng phong cách thiết kế ngay từ đầu sẽ giúp tối ưu công năng sử dụng và tạo nên tổng thể kiến trúc ấn tượng, đáp ứng nhu cầu sinh hoạt.
Kích Thước Mặt Tiền Và Diện Tích Của Khu Đất
Khi thiết kế mẫu nhà 1 tầng đẹp hiện đại, yếu tố kích thước, diện tích khu đất và kích thước mặt tiền là một trong những tiêu chí quan trọng cần được chủ đầu tư và nhà thầu tính toán kỹ lưỡng. Dựa trên diện tích đất thực tế, chủ nhà có thể phân chia không gian sống một cách khoa học, tối ưu công năng giữa các phòng. Tuy nhiên, cần lưu ý rằng diện tích càng lớn thì ngân sách đầu tư cho xây dựng và hoàn thiện cũng sẽ tăng theo tỷ lệ tương ứng.
Chú ý kích thước mặt tiền và diện tích khu đất khi xây dựng mẫu nhà 1 tầng đẹp
Chú ý kích thước mặt tiền và diện tích khu đất khi xây dựng mẫu nhà 1 tầng đẹp hiện đại (Nguồn: Internet)
Bạn có thể tìm kiếm các nguồn cảm hứng về những thiết kế đẹp mắt khác, chẳng hạn như mẫu bánh sinh nhật đẹp đơn giản hàn quốc để thấy sự đa dạng trong thẩm mỹ thiết kế ứng dụng trong nhiều lĩnh vực.
Phân Bổ Không Gian Hợp Lý
Một mẫu nhà 1 tầng đẹp hiện đại không chỉ đáp ứng tính thẩm mỹ mà còn phải đảm bảo công năng sử dụng tối ưu. Nếu xây dựng để ở, ngôi nhà thường mang phong cách cá nhân, phản ánh rõ nét gu thẩm mỹ và nhu cầu sinh hoạt của gia chủ. Ngược lại, nếu hướng tới mục đích kinh doanh như cho thuê, mở quán hoặc homestay, kiến trúc sẽ ưu tiên sự linh hoạt, dễ tiếp cận và phù hợp với thị hiếu chung của nhiều đối tượng khách hàng.
Nguyên Vật Liệu Xây Dựng Nhà
Chọn vật liệu xây dựng phù hợp là yếu tố then chốt giúp công trình bền đẹp theo thời gian. Đặc biệt, với xu hướng xanh và tiết kiệm năng lượng hiện nay, bạn nên ưu tiên sử dụng các loại vật liệu bền vững, thân thiện môi trường như tấm xi măng xanh DURAflex Low Carbon. Đây là lựa chọn lý tưởng cho trần, vách ngăn hoặc lót sàn nhà 1 tầng, đảm bảo độ bền và khả năng chịu ẩm tốt.
Sử dụng các vật liệu xây dựng chất lượng để đảm bảo nhà 1 tầng luôn bền đẹp
Sử dụng các vật liệu xây dựng chất lượng để đảm bảo mẫu nhà 1 tầng đẹp hiện đại luôn bền đẹp (Nguồn: Internet)
Thủ Tục Pháp Lý Trước Khi Xây Dựng
Trước khi thi công, việc hoàn thiện các thủ tục pháp lý xây dựng nhà 1 tầng là yêu cầu bắt buộc theo quy định hiện hành. Chủ đầu tư cần chuẩn bị đầy đủ hồ sơ xin giấy phép xây dựng và nộp cho cơ quan chức năng có thẩm quyền để được xem xét, phê duyệt. Thời gian xử lý hồ sơ thường kéo dài từ vài tuần đến khoảng một tháng, vì vậy bạn nên chủ động lên kế hoạch sớm nhằm đảm bảo tiến độ thi công không bị gián đoạn.
Chi Phí Xây Dựng Mẫu Nhà 1 Tầng Đẹp Hiện Đại
Việc ước tính chi phí xây dựng là một trong những mối quan tâm hàng đầu của mọi gia chủ khi lên kế hoạch xây nhà. Dưới đây là các yếu tố chính ảnh hưởng đến tổng chi phí.
Chi Phí Thiết Kế
Chi phí thiết kế mẫu nhà 1 tầng đẹp hiện đại thường dao động tùy theo phong cách kiến trúc, mức độ chi tiết bản vẽ và độ uy tín của đơn vị tư vấn. Trung bình, chi phí thiết kế dao động từ 100.000 – 250.000 VNĐ/m². Việc đầu tư vào bản thiết kế bài bản ngay từ đầu không chỉ đảm bảo tính thẩm mỹ và công năng sử dụng mà còn giúp tránh sai sót trong quá trình thi công, tiết kiệm đáng kể thời gian và chi phí sửa chữa.
Mẫu thiết kế nhà 1 tầng đẹp, nổi bật, chi phí thiết kế hợp lý
Mẫu thiết kế nhà 1 tầng đẹp hiện đại, nổi bật, chi phí thiết kế hợp lý (Nguồn: Internet)
Đơn Giá Xây Dựng
Trên thực tế, mức chi phí sẽ phụ thuộc vào nhiều yếu tố như quy mô công trình, thiết kế kiến trúc, loại vật liệu sử dụng và đơn giá của nhà thầu. Để có con số ước lượng chính xác, bạn có thể áp dụng công thức phổ biến:
Chi phí xây nhà = Đơn giá xây dựng trung bình x Tổng diện tích thi công
Trong đó, tổng diện tích bao gồm toàn bộ mặt sàn và phần mái của ngôi nhà. Tuy nhiên, con số này chỉ mang tính chất tham khảo. Để nhận được bảng báo giá cụ thể, phù hợp với nhu cầu và điều kiện tài chính, bạn nên liên hệ trực tiếp với đơn vị thi công uy tín để được tư vấn chi tiết nhất.
Ngoài ra, để tối ưu chi phí mà vẫn đảm bảo độ bền và chất lượng công trình, gia chủ nên ưu tiên các vật liệu có tuổi thọ cao, thi công nhanh và thân thiện môi trường. Một trong những giải pháp được nhiều người lựa chọn là sử dụng tấm xi măng DURAflex Low Carbon, sản phẩm thay thế lý tưởng cho gạch truyền thống, giúp giảm chi phí thi công mà vẫn đạt tiêu chuẩn kỹ thuật và thẩm mỹ cao.
Chi phí xây nhà 1 tầng phụ thuộc nhiều yếu tố khác nhau
Chi phí xây dựng mẫu nhà 1 tầng đẹp hiện đại phụ thuộc nhiều yếu tố khác nhau (Nguồn: Internet)
Kết Luận
Bài viết trên đã tổng hợp giúp bạn các mẫu nhà 1 tầng đẹp hiện đại cùng những thông tin chi tiết về ưu điểm, bản vẽ thiết kế, các yếu tố ảnh hưởng và chi phí xây dựng. Hy vọng bạn sẽ sớm lựa chọn được mẫu nhà ưng ý, đáp ứng sở thích và nhu cầu của từng thành viên trong gia đình, kiến tạo một không gian sống lý tưởng, bền vững theo thời gian.
Nếu bạn muốn tìm hiểu về các sản phẩm tấm xi măng DURAflex Low Carbon chất lượng cao hoặc cần tư vấn chuyên sâu về vật liệu xây dựng thân thiện môi trường, vui lòng liên hệ với CÔNG TY TNHH MÔI TRƯỜNG HSE để được hỗ trợ tận tình nhất.
