Cầu thang không chỉ là lối đi kết nối các tầng trong ngôi nhà mà còn là một yếu tố kiến trúc quan trọng, mang ý nghĩa sâu sắc trong phong thủy và ảnh hưởng trực tiếp đến sự an toàn, tài lộc cũng như sức khỏe của gia chủ. Nhiều người thường chỉ quan tâm đến thiết kế và vật liệu mà bỏ qua việc tính toán số bậc, hướng đi, hoặc vị trí của cầu thang – những yếu tố có thể tạo ra sự khác biệt lớn.

Việc thiết kế cầu thang cần cân nhắc kỹ lưỡng để tránh những lỗi phong thủy cơ bản như hướng thẳng ra cửa chính, gây thất thoát tài lộc và may mắn, hay sử dụng cầu thang xoắn ốc có thể làm rối loạn khí trường, khó di chuyển. Tuy nhiên, điều cốt lõi và quan trọng nhất vẫn là việc nắm vững Cách Tính Bậc Cầu Thang chuẩn xác, không chỉ theo các quy tắc kỹ thuật mà còn theo nguyên lý phong thủy, nhằm đảm bảo sức khỏe, tài vận và mang lại sự bình an, thịnh vượng cho gia đình. Để đạt được sự cân bằng này, việc viết văn bản nghị luận về một vấn đề xã hội một cách logic và sâu sắc cũng quan trọng không kém trong việc định hình tư duy và giải quyết các thách thức trong kiến trúc. Bài viết này của CÔNG TY TNHH MÔI TRƯỜNG HSE sẽ cung cấp cho bạn những hướng dẫn chi tiết về cách tính số bậc cầu thang theo cả hai yếu tố kỹ thuật và phong thủy, giúp bạn kiến tạo không gian sống lý tưởng.

Vì Sao Cần Tính Toán Bậc Cầu Thang Cẩn Thận?

Cầu thang được ví như xương sống của ngôi nhà, là con đường dẫn dắt năng lượng và sinh khí lưu chuyển giữa các tầng. Do đó, việc tính toán số bậc cầu thang một cách cẩn thận không chỉ ảnh hưởng đến tính thẩm mỹ mà còn tác động lớn đến phong thủy và sự an toàn của không gian sống.

Tầm Quan Trọng Từ Góc Độ Phong Thủy

Trong kiến trúc nhà ở hiện đại, đặc biệt là các công trình cao tầng, cầu thang đóng vai trò là mạch nối quan trọng, tạo luồng di chuyển và trao đổi năng lượng. Theo quan niệm phong thủy, một dòng chảy năng lượng và luồng sinh khí vô hình luôn luân chuyển tại khu vực cầu thang. Chính vì vậy, cách tính bậc cầu thang theo phong thủy cần được tính toán kỹ lưỡng để đảm bảo sự hài hòa và mang lại may mắn cho gia chủ.

Ông cha ta có câu “có thờ có thiêng, có kiêng có lành”. Mặc dù không thể khẳng định tuyệt đối sự đúng sai của các yếu tố phong thủy, nhưng việc tuân thủ các nguyên tắc này từ lâu đã trở thành một phần của văn hóa xây dựng, mang lại sự yên tâm và tin tưởng cho gia đình.

Một ví dụ điển hình về lỗi phong thủy là khi đầu cầu thang hướng thẳng ra cửa chính, vô tình tạo thành “miệng hổ mở to”, đẩy tất cả sinh khí và tài lộc ra khỏi căn nhà, khiến gia đình khó tích tụ của cải. Nếu lỡ thiết kế như vậy, gia chủ có thể khắc phục bằng cách đặt bình phong, chậu cây xanh hoặc gương trước cửa nhà để ngăn chặn dòng khí tiêu cực. Thậm chí, việc bỏ qua những dấu hiệu hamster sắp chết trong việc chăm sóc thú cưng cũng có thể là một ví dụ nhỏ về sự thiếu chú ý đến các chi tiết quan trọng trong cuộc sống, tương tự như việc không quan tâm đến phong thủy cầu thang.

Khi xây nhà từ 2 tầng trở lên, việc đặc biệt lưu ý đến cách tính bậc cầu thang, hình dáng và vị trí của nó là cực kỳ cần thiết. Bởi lẽ, nếu số bậc phạm phải các quy tắc phong thủy xấu, nó có thể áp chế những may mắn, thịnh vượng, và tạo ra những năng lượng tiêu cực, ảnh hưởng đến sức khỏe cũng như tài vận của các thành viên trong gia đình.

Thiết kế cầu thang hiện đại, đẹp mắt sau khi áp dụng cách tính bậc cầu thang chuẩn phong thủyThiết kế cầu thang hiện đại, đẹp mắt sau khi áp dụng cách tính bậc cầu thang chuẩn phong thủy

Đảm Bảo An Toàn Khi Sử Dụng

Bên cạnh yếu tố phong thủy, sự an toàn là lý do hàng đầu để tính toán bậc cầu thang một cách khoa học. Thông thường, dựa vào chiều cao giữa các tầng trong nhà, đơn vị thiết kế – thi công sẽ tính toán số bậc cầu thang sao cho hợp lý nhất. Không thể áp dụng một công thức duy nhất, bởi lẽ chiều cao giữa các tầng trong thực tế là không giống nhau. Do đó, cần tính toán kỹ lưỡng để các bậc cầu thang có kích thước đều nhau, không quá cao cũng không quá thấp, đảm bảo an toàn tối đa cho người di chuyển, đặc biệt là trẻ nhỏ và người lớn tuổi.

Các nghiên cứu khoa học về công thái học (ergonomics) cũng chỉ ra rằng, số lượng và kích thước bậc cầu thang không chuẩn có thể ảnh hưởng đến sức khỏe, gây mệt mỏi và tác động đến nhịp tim của người đi lại thường xuyên. Một bậc thang quá cao hoặc quá nông đều gây khó khăn và tiềm ẩn nguy cơ vấp ngã. Do đó, trong các bản vẽ kiến trúc tầng nhà, kiến trúc sư cần đặc biệt lưu ý đến thiết kế và cách tính bậc cầu thang để bố trí, sắp xếp sao cho phù hợp nhất, đảm bảo tính thẩm mỹ, tiện nghi và an toàn cho người sử dụng.

Công Thức Tính Bậc Cầu Thang Theo Chiều Cao Tầng

Để có một cầu thang an toàn và tiện lợi, việc áp dụng công thức tính toán khoa học là không thể thiếu. Có nhiều công thức chia bậc cầu thang được áp dụng, tùy thuộc vào kinh nghiệm của người thi công và quy chuẩn xây dựng.

Công thức cơ bản để xác định số bậc cầu thang là:

Số bậc cầu thang = Chiều cao tầng : Chiều cao mỗi bậc

Trong đó:

  • Chiều cao tầng: Là khoảng cách từ sàn tầng dưới đến sàn tầng trên (đã có sẵn trong thiết kế hoặc đo đạc thực tế).
  • Chiều cao mỗi bậc (H): Là chiều cao của một bậc thang, hay còn gọi là “đối bậc”. Đây là thông số cần được tính toán để đảm bảo sự thoải mái khi di chuyển.
  • Chiều rộng của bậc (b): Là chiều rộng của bề mặt mà chúng ta đặt chân lên khi bước, hay còn gọi là “mặt bậc”.

Theo các tiêu chuẩn xây dựng thông thường, chiều cao bậc (H) và chiều rộng bậc (b) có mối quan hệ nhất định để đảm bảo sự thoải mái và an toàn. Một công thức phổ biến được nhiều kiến trúc sư và thợ xây áp dụng là:

H = (60 – b) : 2 (Đơn vị tính là cm)

Công thức này dựa trên nguyên tắc rằng tổng của chiều cao bậc và chiều rộng bậc nên nằm trong một khoảng nhất định (khoảng 60cm) để tạo ra bước đi tự nhiên và ít tốn sức nhất.

  • Thông thường, chiều cao bậc (H) lý tưởng nằm trong khoảng 15 – 18 cm.
  • Chiều rộng bậc (b) lý tưởng nằm trong khoảng 25 – 30 cm.

Ví dụ: Nếu chiều cao tầng là 3.0m (300cm) và bạn muốn chiều cao mỗi bậc là 17cm, thì số bậc cầu thang sẽ là:
300cm / 17cm ≈ 17.65 bậc.
Vì số bậc phải là số nguyên, bạn có thể chọn 17 hoặc 18 bậc, sau đó điều chỉnh lại chiều cao thực tế của mỗi bậc cho đều nhau.

  • Nếu chọn 18 bậc: Chiều cao mỗi bậc = 300cm / 18 = 16.67cm.
  • Nếu chọn 17 bậc: Chiều cao mỗi bậc = 300cm / 17 = 17.65cm.

Sau khi xác định chiều cao bậc, bạn có thể áp dụng công thức H = (60 – b) : 2 để kiểm tra chiều rộng bậc tương ứng và điều chỉnh sao cho phù hợp nhất. Việc lựa chọn vật liệu xây dựng cũng đòi hỏi sự am hiểu sâu sắc, chẳng hạn như việc xác định kim loại nào dẫn điện tốt nhất để đảm bảo an toàn và hiệu quả cho hệ thống điện trong ngôi nhà.

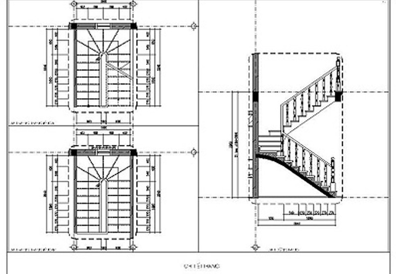
Sơ đồ chia bậc cầu thang hợp lý dựa trên chiều cao tầng và các quy chuẩnSơ đồ chia bậc cầu thang hợp lý dựa trên chiều cao tầng và các quy chuẩn

Các Phương Pháp Tính Bậc Cầu Thang Theo Phong Thủy

Trong phong thủy nhà ở, số bậc cầu thang có ý nghĩa đặc biệt quan trọng, được cho là ảnh hưởng đến vận may, tài lộc và sức khỏe của gia đình. Có hai phương pháp chính để tính bậc cầu thang theo phong thủy mà các chuyên gia thường áp dụng: tính theo Vòng Trường Sinh và theo quy luật “Sinh – Lão – Bệnh – Tử”.

Tính Bậc Cầu Thang Dựa Trên Vòng Trường Sinh

Để có thể tính toán được số bậc cầu thang đẹp chuẩn phong thủy, gia chủ cần nắm vững quy tắc Ngũ hành và ý nghĩa của Vòng Trường Sinh.

Ý Nghĩa Vòng Trường Sinh

Theo quan điểm của các nhà triết học gia phương Đông, Vòng Trường Sinh bao gồm 12 giai đoạn, thể hiện một quy luật tồn tại của sự vật bao gồm sinh trưởng – phát triển – kết thúc. Bất kỳ ai cũng phải trải qua quy luật này. Nói một cách đơn giản, Vòng Trường Sinh được ví như vòng đời của một con người, từ lúc sinh ra đến khi kết thúc.

Các Giai Đoạn Của Vòng Trường Sinh

Vòng Trường Sinh gồm 12 giai đoạn gắn với 12 ý nghĩa được thể hiện lần lượt như sau:

  • Trường Sinh (sinh ra, bắt đầu)
  • Mộc Dục (tắm rửa, được nuôi dưỡng)
  • Quan Đới (phát triển, trưởng thành, có địa vị)
  • Lâm Quan (làm quan, đạt đỉnh cao)
  • Đế Vượng (cực thịnh, hoàng đế)
  • Suy (suy yếu, thoái trào)
  • Bệnh (ốm đau, bệnh tật)
  • Tử (chết, kết thúc)
  • Mộ (nhập mộ, chôn cất)
  • Tuyệt (tan rã, biến mất)
  • Thai (phôi thai, bắt đầu hình thành)
  • Dưỡng (thai trưởng, được nuôi dưỡng trong bụng mẹ)

Để thấu hiểu ý nghĩa sâu sắc của những nguyên tắc này, đôi khi chúng ta cần khả năng phân tích bài thơ đồng chí một cách kỹ lưỡng để nhận diện những giá trị cốt lõi, tương tự như việc giải mã vòng Trường Sinh.

5 Ngũ Hành Nhà Cửa và Vòng Trường Sinh

Trong phong thủy, 12 giai đoạn của Vòng Trường Sinh được gắn liền lần lượt với Ngũ hành của ngôi nhà, căn cứ vào kiến trúc và hướng nhà. Tùy thuộc vào hình dạng và hướng của ngôi nhà, điểm Trường Sinh sẽ bắt đầu ở một bậc thang khác nhau:

  • Nhà hình Thủy: Bậc thang thứ 1 là Trường Sinh.
  • Nhà hình Mộc: Bậc thang thứ 3 là Trường Sinh.
  • Nhà hình Thổ: Bậc thang thứ 5 là Trường Sinh.
  • Nhà hình Hỏa: Bậc thang thứ 7 là Trường Sinh.
  • Nhà hình Kim: Bậc thang thứ 9 là Trường Sinh.

Bảng minh họa vòng Trường Sinh 12 giai đoạn và mối liên hệ với Ngũ hành trong cách tính bậc cầu thangBảng minh họa vòng Trường Sinh 12 giai đoạn và mối liên hệ với Ngũ hành trong cách tính bậc cầu thang

Dựa theo quy luật Vòng Trường Sinh và Ngũ hành của căn nhà, cách tính bậc cầu thang là chúng ta đếm mỗi bậc là 1 sao, kế tiếp trong vòng Trường Sinh cho đến hết 12 sao sẽ lại tiếp tục đếm một vòng mới. Bậc cuối cùng của cầu thang nên rơi vào cung “Trường Sinh”, “Quan Đới”, “Lâm Quan”, “Đế Vượng” hoặc “Thai”, “Dưỡng” để mang lại may mắn, tài lộc. Tránh các cung “Suy”, “Bệnh”, “Tử”, “Mộ”, “Tuyệt”.

Ví dụ về số bậc thang chuẩn theo Ngũ hành nhà:

  • Nhà hình Thủy (Bậc 1 là Trường Sinh): Số bậc thang chuẩn sẽ là: 1, 3, 4, 5, 9, 11, 13, 15, 16, 17, 21, 23…
  • Nhà hình Mộc (Bậc 3 là Trường Sinh): Số bậc thang chuẩn sẽ là: 1, 3, 5, 6, 7, 11, 13, 15, 17, 18, 19, 23, 25…
  • Nhà hình Thổ (Bậc 5 là Trường Sinh): Số bậc thang chuẩn sẽ là: 1, 3, 5, 7, 8, 9, 13, 15, 17, 19, 20, 21, 25, 27…
  • Nhà hình Hỏa (Bậc 7 là Trường Sinh): Số bậc thang chuẩn sẽ là: 3, 5, 7, 9, 10, 11, 15, 17, 19, 21, 22, 23, 27…
  • Nhà hình Kim (Bậc 9 là Trường Sinh): Số bậc thang chuẩn sẽ là: 1, 5, 9, 11, 12, 13, 15, 17, 19, 21, 22, 23, 25…

Tính Bậc Cầu Thang Theo Quy Luật “Sinh – Lão – Bệnh – Tử”

Đây là phương pháp phổ biến và được nhiều người biết đến nhất khi tính số bậc cầu thang theo phong thủy. Quy luật này dựa trên chu kỳ cuộc đời con người, với mong muốn bậc thang cuối cùng sẽ rơi vào cung “Sinh”, mang lại may mắn và hạnh phúc cho gia đình.

Cách tính bậc cầu thang theo quy luật “Sinh – Lão – Bệnh – Tử” là đếm từ bậc đầu tiên. Chuỗi Sinh – Lão – Bệnh – Tử được lặp lại, và bậc thang cuối cùng của cầu thang (tính cả mặt sàn tầng trên cùng là bậc cuối) cần rơi vào cung “Sinh”.

  • Sinh (1, 5, 9, 13, 17, 21, 25,…)
  • Lão (2, 6, 10, 14, 18, 22, 26,…)
  • Bệnh (3, 7, 11, 15, 19, 23, 27,…)
  • Tử (4, 8, 12, 16, 20, 24, 28,…)

Do đó, bậc thang cuối cùng rơi vào cung Sinh gia đình sẽ luôn gặp may mắn, thuận lợi, và hạnh phúc. Cần tránh để bậc thang cuối cùng rơi vào cung Lão, Bệnh, Tử. Đặc biệt, cung “Tử” được cho là rất nguy hiểm, có thể mang lại những điều xui xẻo, ảnh hưởng nghiêm trọng đến sức khỏe và tính mạng của các thành viên trong gia đình. Việc lựa chọn số bậc cầu thang theo quy luật “Sinh – Lão – Bệnh – Tử” đòi hỏi sự cân nhắc và phân tích vợ chồng a phủ về các yếu tố tâm linh, tương tự như việc thấu hiểu các khía cạnh phức tạp trong một tác phẩm văn học.

Minh họa cách tính bậc cầu thang theo quy luật Sinh – Lão – Bệnh – Tử để chọn số bậc tốtMinh họa cách tính bậc cầu thang theo quy luật Sinh – Lão – Bệnh – Tử để chọn số bậc tốt

Tính theo chu kỳ này, vị trí bậc cầu thang rơi vào cung tốt là các bậc có số dạng 4x + 1 (trong đó x là số chu kỳ Sinh-Lão-Bệnh-Tử), ví dụ: bậc số 5, bậc số 9, bậc số 13, bậc số 17, bậc số 21, bậc số 25…

Thông thường, với chiều cao tầng của nhà ở Việt Nam từ 3m-3.6m, thì số bậc cầu thang phù hợp nhất để rơi vào cung Sinh thường là 21 hoặc 25 bậc. Số bậc này đã bao gồm cả mặt sàn của tầng 2 (được tính là bậc cuối cùng).

Hình ảnh minh họa số bậc cầu thang lý tưởng theo chu kỳ Sinh – Lão – Bệnh – TửHình ảnh minh họa số bậc cầu thang lý tưởng theo chu kỳ Sinh – Lão – Bệnh – Tử

Cách Hóa Giải Cầu Thang Khi Rơi Vào Cung Xấu

Đối với những căn nhà đã lỡ xây cầu thang và vô tình số bậc rơi vào cung xấu như “Bệnh” hoặc “Tử” theo quy luật “Sinh – Lão – Bệnh – Tử”, đừng quá lo lắng. Mặc dù lý tưởng nhất là tính toán kỹ lưỡng ngay từ đầu để tránh trường hợp này, nhưng thực tế cho thấy mọi vấn đề đều có cách hóa giải riêng.

Thông thường, nhiều gia chủ sẽ nghĩ ngay đến việc phá dỡ cầu thang và làm lại. Đây là một giải pháp triệt để nhưng lại khá tốn kém về chi phí, thời gian và công sức, bởi nó liên quan đến nhiều yếu tố cấu trúc và hoàn thiện khác trong căn nhà.

Một cách đơn giản và tiết kiệm hơn để hóa giải cầu thang xấu là tạo thêm bậc cầu thang giả. Phương pháp này thường được thực hiện như sau:

  • Sử dụng thảm: Thêm 1-2 tấm thảm ở bậc trên cùng hoặc bậc dưới cùng của cầu thang (tùy thuộc vào số bậc bạn cần điều chỉnh để bậc cuối rơi vào cung Sinh). Khi di chuyển trên cầu thang, việc bước lên tấm thảm đó sẽ được tính như đang bước thêm 1-2 bậc thang ảo.
  • Lưu ý quan trọng khi dùng thảm:
    • Cố định thảm: Tấm thảm cần được bố trí cố định chắc chắn, tránh bị xê dịch hoặc trượt khỏi vị trí đã được khoanh vùng sẵn. Điều này không chỉ đảm bảo hiệu quả phong thủy mà còn quan trọng cho sự an toàn, tránh vấp ngã.
    • Thói quen sử dụng: Dần dần, các thành viên trong gia đình cần hình thành thói quen bước lên tấm thảm như một phần của cầu thang. Nếu lâu ngày quên không bước lên thảm, hiệu quả hóa giải có thể giảm đi.
    • Chọn màu sắc, chất liệu: Nên chọn màu sắc và chất liệu thảm hài hòa với tổng thể thiết kế cầu thang và nội thất, đồng thời có thể cân nhắc yếu tố ngũ hành để tăng cường hiệu quả phong thủy.

Việc áp dụng các giải pháp hóa giải này giúp bạn vừa tiết kiệm chi phí, vừa đảm bảo yếu tố phong thủy, mang lại sự yên tâm cho không gian sống của mình.

Kết Luận

Việc cách tính bậc cầu thang không chỉ là một yêu cầu kỹ thuật đơn thuần mà còn là một nghệ thuật trong thiết kế kiến trúc, đòi hỏi sự am hiểu sâu sắc về cả khoa học xây dựng và phong thủy. Từ việc xác định chiều cao và chiều rộng mỗi bậc sao cho an toàn, tiện lợi, cho đến việc lựa chọn số bậc theo các quy luật tâm linh như Vòng Trường Sinh hay Sinh – Lão – Bệnh – Tử, mỗi chi tiết đều có thể ảnh hưởng lớn đến cuộc sống của gia chủ.

Những kiến thức và công thức mà CÔNG TY TNHH MÔI TRƯỜNG HSE đã chia sẻ trên đây hy vọng sẽ cung cấp cho bạn cái nhìn toàn diện và những công cụ cần thiết để áp dụng cho ngôi nhà của mình, dù là nhà 2 tầng, nhà 3 tầng, hay nhà lệch tầng. Hãy luôn nhớ rằng, một cầu thang được thiết kế và tính toán chuẩn xác không chỉ mang lại vẻ đẹp thẩm mỹ, sự an toàn mà còn là yếu tố quan trọng kiến tạo nên một không gian sống hài hòa, thịnh vượng và tràn đầy năng lượng tích cực. Hãy đầu tư thời gian và công sức vào việc tính toán này để xây dựng một tổ ấm vững chãi, an lành và hạnh phúc!

Để lại một bình luận

Email của bạn sẽ không được hiển thị công khai. Các trường bắt buộc được đánh dấu *